Skip to main content

New announcement. Learn more

Cabins for Sale.

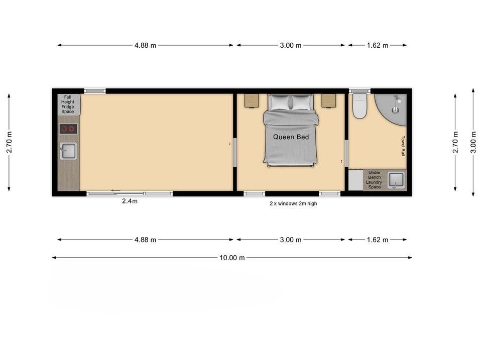
10 x 3m / 30sqm
One Bedroom Self-Contained

  • Living Area with Kitchen

  • One Separate Bedroom

  • Separate Bathroom with Laundry Space

Fully customisable.
Priced from $89,000 + delivery.
Delivery available throughout the North Island.

Standard Specifications:

  • Steel bearers

  • 150 x 50 H3 joists

  • Underfloor insulation

  • Tanalised plywood floor 19mm

  • 90 x 45 wall framing 

  • 140 x 45 rafters

  • Wall & ceiling insulation

  • Building wrap

  • Cladding
    - ply with battens, corrugated iron, weatherboard

  • Cedar accents above windows
    - can be painted or clad as per exterior

  • Coloursteel roof
    - your choice of colour within standard range

  • Marley gutter and Marley downpipe
    - colour matched to roof if possible

  • New double glazed ranchslider - 2.4 x 2m
    - choice of 5 colours; Matte Black, Ironsand, Titania, Silver Pearl, Arctic White

  • New double glazed windows x 3
    - choice of 5 colours as above

  • Cool colours lumbersider Resene paint to exterior
    - your choice of colour within standard range

  • 9mm interior
    - ply or gib

  • 10mm grooved MDF ceilings

  • Resene low sheen interior paint

  • Barn sliders installed

  • Floor coverings, professionally laid
    - vinyl flooring in living and bathroom areas
    - residential carpet and underlay in bedroom, professionally laid

  • Bathroom package
    - shower, toilet, vanity & all tapware, plus laundry space (no appliances)

  • Kitchen
    - cabinetry with soft closes, 20mm stone benchtop, sink & tap, two burner hob, range hood & splash back (no appliances)

  • Exterior tap & power point

  • Gas hot water system
    - bottles not included
    - 45kg bottle must be used for warranty

  • Full electrical & electrical COC
    - work done by a certified electrician
    - downlights, double power points, light switches, exterior up / down lights, plus a caravan plug & 20m lead (hardwired option also a

Optional Extras / Upgrades:

  • Larger joinery units

  • Additional joinery

  • Opaque glass on bathroom window

  • Alternative exterior cladding, weatherboard or coloursteel for example

  • Alternative interior linings, v-groove ply or battened walls for example

  • Higher quality furnishings, fixtures and fittings

  • Professional painter

  • Kitchen
    - over head cabinets
    - undermounted sink
    - appliances

  • Larger shower

  • Wardrobes

  • Outdoor shower

  • Heat pump

  • Blinds

  • Data wiring & points

  • Hardwired permanent electrical connection

  • Exterior sensor light

  • Macerator waste water pump

If there is anything else you would like to add, please let us know. We are very happy to work with you to create the space you want. 

On Site Services:

  • Cabin foundations

  • Decking 

  • Baseboards / Base Cladding

  • Tank supply & install

  • Water pump supply & install

  • Site works such as levelling cabin site, driveways, drainage, services etc

Available depending on your location.
We are always happy to help organise & liase with local contractors.

 

This product has been added to your cart

CHECKOUT